Παράκαμψη προς το κυρίως περιεχόμενο

Κύριο μενού

  • Αρχική Σελίδα
  • Κατάλογος Παραδοσιακών Οικισμών
  • Πληροφορίες
  • Αρχική Σελίδα Εργασίας
  • Γενικά Στοιχεία
    • Γενικά στοιχεία για την ευρύτερη περιοχή
    • Γενικά στοιχεία για τον οικισμό
    • Γεωγραφική Θέση - Επικοινωνία - Προσβάσεις
    • Γενική Εικόνα - Σχέση με το Φυσικό Περιβάλλον
    • Ιστορικά Στοιχεία
    • Πληθυσμιακά Στοιχεία, Οικονομικές και Παραγωγικές Δραστηριότητες
    • Υφιστάμενο Νομοθετικό Πλαίσιο
  • Οικιστική Συγκρότηση
    • Η Δομή του Οικισμού
    • Δημόσιος Χώρος
    • Ιδιωτικοί Ελεύθεροι Χώροι - Αυλές
  • Τα Κτήρια
    • Το Σύνολο
    • Αρχιτεκτονικές Τυπολογίες
    • Δομική Ανάλυση
    • Τοπικό Δομικό Σύστημα και Εξέλιξη στο Χρόνο
  • Συμπεράσματα
    • Συμπεράσματα
    • Βιβλιογραφία
 
NTUA Logo

ΕΘΝΙΚΟ ΜΕΤΣΟΒΙΟ ΠΟΛΥΤΕΧΝΕΙΟ | ΣΧΟΛΗ ΑΡΧΙΤΕΚΤΟΝΩΝ - ΜΗΧΑΝΙΚΩΝ

ΑΡΧΙΤΕΚΤΟΝΙΚΗ ΑΝΑΛΥΣΗ ΠΑΡΑΔΟΣΙΑΚΩΝ ΚΤΗΡΙΩΝ ΚΑΙ ΣΥΝΟΛΩΝ

ΠΡΟΓΡΑΜΜΑ ΨΗΦΙΟΠΟΙΗΣΗΣ ΔΙΑΤΟΜΕΑΚΟΥ ΜΑΘΗΜΑΤΟΣ 5ΟΥ ΕΞΑΜΗΝΟΥ

  • > Σύνδεση

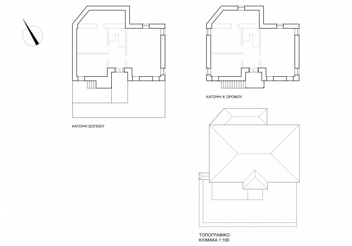
Πεντάλοφος (Τμήμα ΣΤ)

Κτίριο 5

  • Καταγραφή των Κτισμάτων
    • Χάρτης Χρήσεων Γης
    • Καταγραφή των Κτισμάτων
    • Κτίριο 1
    • Κτίριο 2
    • Κτίριο 3
    • Κτίριο 4
    • Κτίριο 5
    • Κτίριο 6
    • Κτίριο 7
    • Κτίριο 8
    • Κτίριο 9
    • Κτίριο 10
  • Κατάσταση Διατήρησης
    • Κατάσταση Διατήρησης
  • Βαθμός Αλλοίωσης
    • Βαθμός Αλλοίωσης
bursa bayan escort gorukle escort
bursa bayan escort gorukle escort bayan
bursa bayan escort bursa bayan escort bursa bayan escort bursa bayan escort bursa bayan escort alanya escort bayan antalya escort eskişehir escort mersin escort alanya escort bayan bodrum escort bayan havalimanı transfer