Πεντάλοφος (Τμήμα Ε)

ΚΤΗΡΙΟ 9

Τοποθεσία κτηρίου στον χάρτηΚΤΗΡΙΟ 9

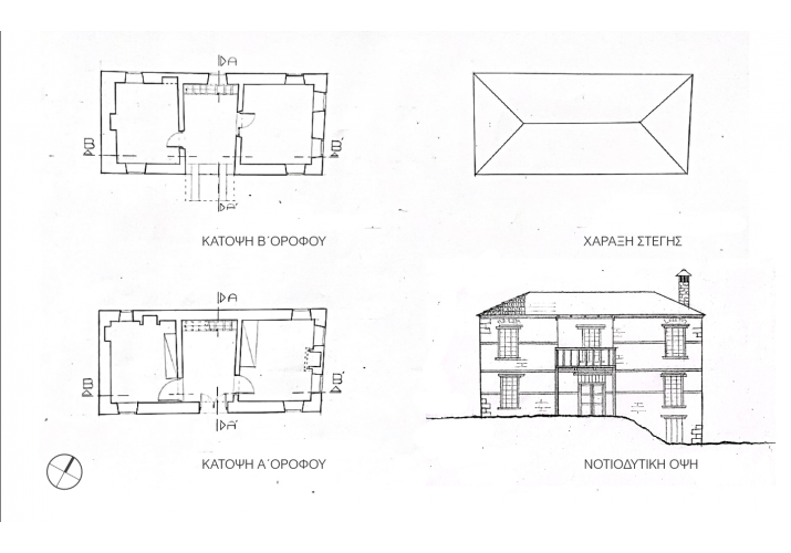
Πρόκειται για διώροφη κατοικία με ορθογωνική κάτοψη. Το κτήριο είναι χτισμένο με αργολιθοδομή και διαθέτει ανοιχτό χαγιάτι. Περιτριγυρίζεται από μεγάλη αυλή, ενώ παράλληλα διαθέτει μία κύρια εξωτερική είσοδο, που σηματοδοτείται από μία ξύλινη παραδοσιακή εξώπορτα. Χαρακτηριστική είναι η συμμετρία στην πρόσοψη του κτηρίου, στοιχείου που ακολουθούν εν μέρει και οι υπόλοιπες όψεις. Έχει υποστεί αρκετές φθορές, γεγονός που χαρακτηρίζει το κτήριο ερείπιο.