Πεντάλοφος (Τμήμα Δ)

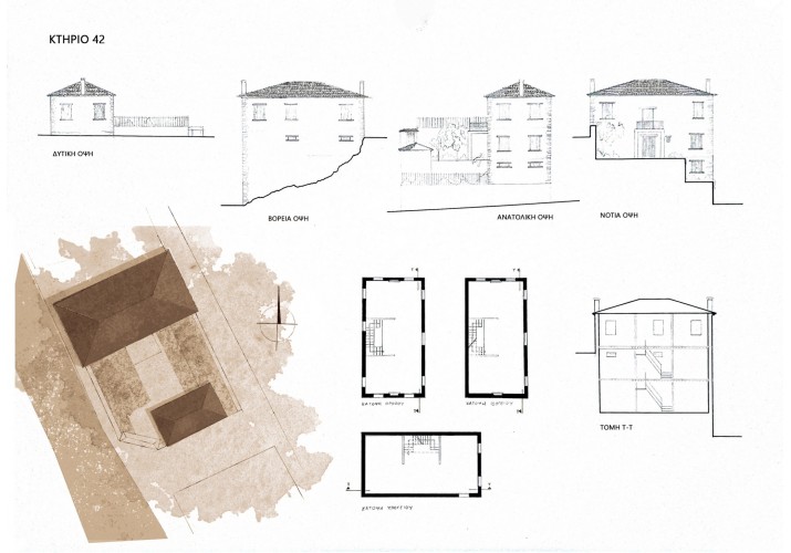
ΚΤΙΡΙΟ 3 (42)

Τοποθεσία στον χάρτηΟικία 42
Νότια ΟψηΟικία 42
Δυτική ΟψηΟικία 42
Βόρεια ΟψηΟικία 42
Ανατολική ΟψηΞύλινο ΚούφωμαΣχέδια - Ανατολική, Δυτική, Βόρεια και Νότια Οψη, Κατόψεις τριών σταθμών της οικίας, Τομή και Κάτοψη ΔώματοςΝότια ΟψηΑνατολική Οψη
Το κτήριο 42 είναι είναι μια τριώροφη, πετρόκτιστη κατοικία η οποία βρίσκεται στην οδό Κοζάνης Ιωαννίνων.
 
Είναι τρίχωρη κατοικία. Η είσοδος στη γίνεται από τον πρώτο όροφο μέσω της αυλής.
 
ΟΙ αλλοιώσεις που έχει δεχθεί, έχουν τη μορφή προσθήκης εξώστη πάνω από την είσοδο από σκυρόδεμα, στεγάστρου απο λαμαρίνα, σοβάτισμα 20 εκατοστών στο άνοιγμα της κεντρικής εισόδου, αντικατάσταση κεραμιδιών και κουφωμάτων με σύνχρονα.
 
Η αυλή του έχει δυο επίπεδα και η είσοδος σε αυτή, γίνεται από τον παράλληλο στη οδό Κοζάνης Ιωαννίνων, οδό.
 
Απέναντι από την είσοδο της οικίας υπάρχει ένα μικρότερο κτήριο το οποίο ήταν πολύ πιθανόν στάβλος αλλά την παρούσα στιγμή έχει δεχθεί προσθήκη με την μορφή βεράντας από σκυρόδεμα και λειτουργεί ως οικία.
 
Έχουν και τα δυο τετράριχτη στέγη.