ΤΑ ΑΝΟΙΓΜΑΤΑ
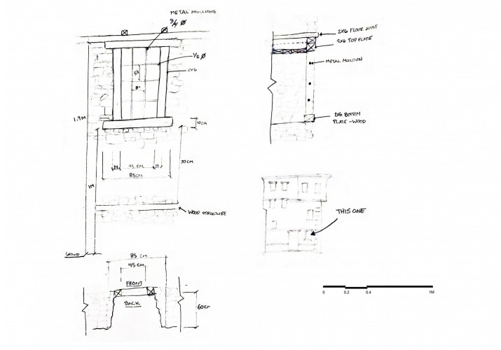
Τα παράθυρα κατασκευάζονται με μέτρο τον πήχη. Εξωτερικά, μπορεί να περιβάλλονται από τετράξυλο, το οποίο δένεται με την ξυλοδεσιά. Ειδάλλως, χρησιμοποιούνται γωνιόλιθοι. Τα πρέκια ποτέ δεν είναι από μία πέτρα. Πάντοτε ξύλινα, και πολύ συχνά με ανακουφιστικό τόξο. Τα τόξα δεν είναι ιδιαίτερα επιμελημένα, μπορεί να εμφανίζουν κλειδί, ενώ σε νεότερες κατασκευές μπορεί να είναι χθαμαλά, από οπτόπλινθους. Τα τύμπανά τους γεμίζονται με μικρότερες πέτρες και χώμα, ενώ σε ένα παράδειγμα μόνο, τα τύμπανα καλύπτονται από ξύλο κομμένο σε σχήμα τόξου. Φεγγίτες στα τόξα δεν εμφανίζονται ποτέ. Σε ισόγειους χώρους, τα ανοίγματα σπανίζουν, είναι μικρότερα, και μπορεί απλά να περιορίζονται σε θυρίδες αερισμού. Επίσης, δεν έχουν πάντοτε κούφωμα, και η μόνη ασφάλεια που μπορεί να διαθέτουν, είναι σιδεριά. Στον όροφο, τα ανοίγματα μεγαλώνουν, έχουν κούφωμα και πιθανώς σιδεριά. Στον τελευταίο όροφο, τα ανοίγματα αυξάνονται σε αριθμό και μέγεθος, διαθέτουν πλήρες σύστημα κουφώματος, και ποτέ σιδεριά. Ακριβώς επειδή τα ανοίγματα είναι μηχανισμοί για το κτήριο, προσαρμόζονται πάντοτε ανάλογα με τις ανάγκες του εκάστοτε ορόφου και δωματίου. Έτσι εξηγείται και η μεγάλη ποικιλία διαφορετικών τύπων και μεγεθών ανοιγμάτων στο ίδιο κτήριο. Ακόμα, τα πιο εύπορα σπίτια, διαθέτουν κατά κανόνα περισσότερα και μεγαλύτερα ανοίγματα, μιας και οι κάτοικοί τους μπορούν να διαθέσουν περισσότερα χρήματα για θέρμανση, και επομένως δεν ενοχλούνται από μεγαλύτερες θερμικές απώλειες.
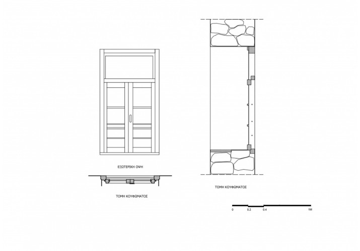
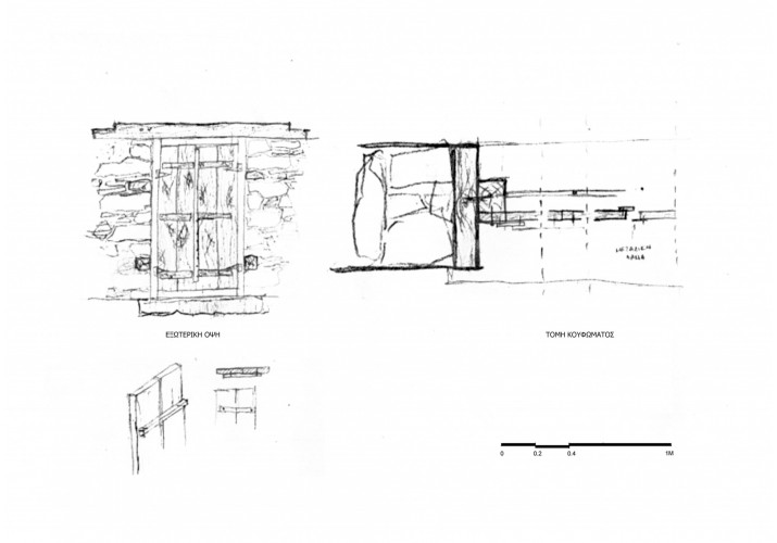
Τα παλαιότερα κουφώματα τοποθετούνταν πάντα στην εξωτερική παρειά του τοίχου, αρχικά δεν διέθεταν τζαμιλίκια, και τα σκούρα τους άνοιγαν πάντα προς τα μέσα. Διέθεταν οριζόντιο κιγκλίδωμα ασφαλείας από ξύλο, και κατακόρυφες σανίδες από κάτω. Τα τζαμιλίκια, όταν προστέθηκαν, μπήκαν εξωτερικά. Τα σκούρα, μπορεί να ήταν μονολιθικά, ή αλλιώς καρφωτά. Διέθεταν πρωτόγονους μεντεσέδες, που αποτελούνταν από δύο κρίκους που έδεναν μεταξύ τους. Ασφάλιζαν με μικρή σφήνα στο πρέκι και την ποδιά. Τα νεότερα κουφώματα τοποθετήθηκαν στην εσωτερική παρειά, με το τζαμιλίκι από μέσα, και τα σκούρα να ανοίγουν προς τα έξω. Αυτά, συνεχίζουν να είναι καρφωτά, αλλά χρησιμοποιούνται και ταμπλαδωτά. Γαλλικά δεν χρησιμοποιούνται.