ΕΠΙΠΛΕΟΝ ΥΛΙΚΟ
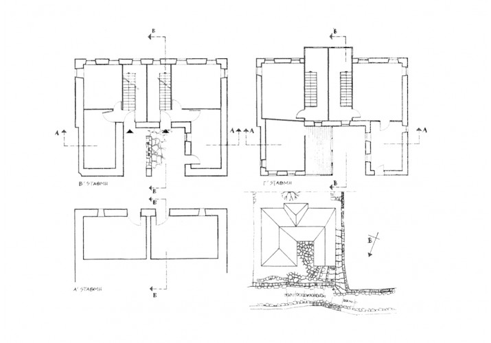
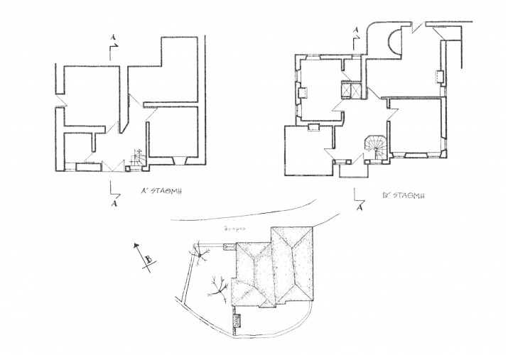
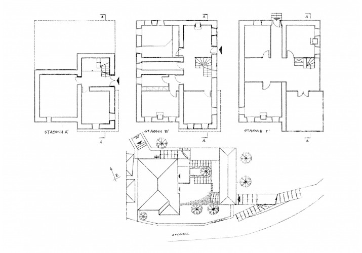
Συμπληρωματικά με την επιτόπια καταγραφή κτισμάτων της ομάδας, αξιοποιείται υλικό από παλαιότερη σπουδαστική εργασία. Συμπεριλαμβάνεται η καταγραφή 12 κτισμάτων της ίδιας περιοχής, ώστε να μπορέσουμε να αντλήσουμε ακόμα περισσότερα συμπεράσματα για την κατοίκηση και την κατασκευή. Παρατηρούμε ομοιότητες και αναγνωρίζουμε στοιχεία που "διαβάσαμε" κατά την επιτόπια καταγραφή μας.