Παράκαμψη προς το κυρίως περιεχόμενο
Κύριο μενού
Αρχική Σελίδα
Κατάλογος Παραδοσιακών Οικισμών
Πληροφορίες
Αρχική Σελίδα Εργασίας
Γενικά Στοιχεία
Γενικά στοιχεία για την ευρύτερη περιοχή
Γενικά στοιχεία για τον οικισμό
Γενική Εικόνα - Σχέση με το Φυσικό Περιβάλλον
Οικιστική Συγκρότηση
Η Δομή του Οικισμού
Δημόσιος Χώρος
Τα Κτήρια
Το Σύνολο
Αρχιτεκτονικές Τυπολογίες
Δομική Ανάλυση
Συμπεράσματα
Ο μορφολογικός χαρακτήρας της κατοικίας και ο αισθητικός χαρακτήρας του συνόλου. Παρατηρήσεις για την αλλοίωση του οικισμού.
Σημειώσεις κειμένων
Βιβλιογραφία
ΕΘΝΙΚΟ ΜΕΤΣΟΒΙΟ ΠΟΛΥΤΕΧΝΕΙΟ |
ΣΧΟΛΗ ΑΡΧΙΤΕΚΤΟΝΩΝ - ΜΗΧΑΝΙΚΩΝ
ΑΡΧΙΤΕΚΤΟΝΙΚΗ ΑΝΑΛΥΣΗ ΠΑΡΑΔΟΣΙΑΚΩΝ ΚΤΗΡΙΩΝ ΚΑΙ ΣΥΝΟΛΩΝ
ΠΡΟΓΡΑΜΜΑ ΨΗΦΙΟΠΟΙΗΣΗΣ ΔΙΑΤΟΜΕΑΚΟΥ ΜΑΘΗΜΑΤΟΣ 5ΟΥ ΕΞΑΜΗΝΟΥ
> Σύνδεση
Ιμπορειός
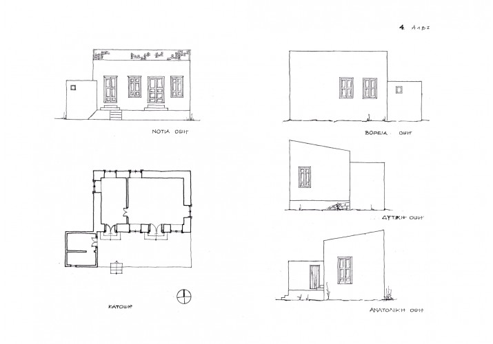
Κτήριο Νο4
Αντιπροσωπευτικοί Τύποι
Κτήριο Νο1
Κτήριο Νο2
Κτήριο Νο3
Κτήριο Νο4
Κτήριο Νο5
Κτήριο Νο6
Κτήριο Νο7
Κτήριο Νο8
Κτήριο Νο9
Κτήριο Νο10
Κτίσμα Νο11
Κτήριο Νο12
Κτήριο Νο13
Κτήριο Νο14
Κτήριο Νο15
Κτήριο Νο16
Κτήριο Νο17
Κτήριο Νο18
Κτήριο Νο19
Κτήριο Νο20
Κτήριο Νο21
Κτήριο Νο22
Κτήριο Νο23
Κτήριο Νο24
Κτήριο Νο25
Κτήριο Νο26
Αρχιτεκτονικά Στοιχεία
Τυπολογική διερεύνηση της κατοικίας στο νησί της Χάλκης
Τυπολογική διερεύνηση της κατοικίας στον Ιμπορειό
Ανοίγματα
Κουφώματα και άλλα ξύλινα στοιχεία εσωτερικού κατοικιών
Θόλοι -φούρνοι, αποχωρητήρια-αποχετεύσεις
Στέρνες
Σκάλες
Άλλα στοιχεία
Συγκριτικοί Πίνακες
Τυπολογικός πίνακας κτισμάτων
bursa bayan escort
gorukle escort
bursa bayan escort
gorukle escort bayan
bursa bayan escort
bursa bayan escort
bursa bayan escort
bursa bayan escort
bursa bayan escort
alanya escort bayan
antalya escort
eskişehir escort
mersin escort
alanya escort bayan
bodrum escort bayan
havalimanı transfer